处发布:天潼里以品质铸就传奇!开元ky棋牌聚焦天潼198售楼
天潼里售楼处预约电话☎◆•○□•☆:天潼里售楼处预约电话☎□…◁:天潼里售楼处预约电话☎▼□…:天潼里售楼处预约电话☎☆▪▷…:
在个人住房信贷优化方面▪◁,新政带来实质性成本减负 —— 银行业金融机构将不再划分首套与二套住房的利率定价差异■☆,而是结合市场自律要求▽•、自身经营状况及客户风险等级△☆•▼□◇,灵活确定每笔商业性个人住房贷款的实际利率●◇-▽。
有效释放刚需及改善需求-•☆◁▷。或将提供约50万个高收入岗位◁★◇▼,大平层-▽,
此外△▲★,业内专家表示◁▷■○,11 月环比增幅进一步扩大至 21%▪◇■□。而政策出台节点恰逢 ▽□•★“金九银十-…◇▼” 传统销售旺季▷◆▽■,
常被忽略的踢脚线◁●…▽•,在设计师的妙笔下绽放新生◇●•-。石材+斜面的设计组合◆▪▲▪,赋予了踢脚线别样的建筑美感▷•■◁□。
在▽▼◇◆★▼“whitebox▼○-◆”的理念框架中=…•…,重新审视比例▲○☆◆、色系与质感开元ky棋牌…▷,以▪○•◆“livingessentials(生活的必需)◁▽★■”为基础=△=□,拓宽功能的多样性▼▽□◆、美感的丰富性◁▼◆▷,让审美滋养生活▲▪●☆■○。
东向横厅连西厨○…◁●■、餐厅□▲■、客厅◆▼-★○□,面宽大●■,视野开阔•☆☆◇■○。天潼里售楼处预约电话☎◆☆○○:天潼里售楼处预约电话☎=●●▪:天潼里售楼处预约电话☎◇☆:天潼里售楼处预约电话☎□◇◇=•…:
厨房采用洄游式立体布局▲=,一半是□◇◁□▷“工作厨房▼★”▽◆…,隐于内部的中式厨房■■▲,有效避免油烟外泄●=,无论烹炸煎烤…★▷▽▷☆,空间之外清新依旧•…○▲…。天潼里售楼处预约电话☎…▽□•:天潼里售楼处预约电话☎•◁●•▪:天潼里售楼处预约电话☎◇☆:天潼里售楼处预约电话☎●□☆:
业内专家普遍认为★◁,上海此次新政是对市场诉求的积极回应◇□◁•。自去年全国 ●▽□=★“930…◇★▪” 新政以来☆☆,房地产市场总体朝着止跌回稳方向发展▼△,今年二季度起各地市场出现新变化▲▽▼-,亟需政策进一步加码=☆。此次上海新政的落地☆■,也贯彻落实了 6 月国常会 □△▷◆“更大力度推动房地产市场止跌回稳○•■●▽◁” 及 8 月国务院 ▲▷•●○◁“巩固止跌回稳态势▪☆☆…△” 的相关部署◆▲。
珍藏无尽风雅▼▷◇▽△。请联系我们••◆▷,让主人的风雅志趣一眼可见▽■△○。减少抛售压力◇□●•,安置一组玻璃柜☆■☆,让古典家具以崭新的容貌重回生活-•▷◆◆◇。我们第一时间处理如有问题欢迎来电咨询△★▪◇•,7 月一线城市新房价格环比下降 0▲★-•.2%★-○•★,◆☆△☆•-” 卢文曦补充道…▪…•,满足上海购房资格的居民家庭(含沪籍家庭○●、连续缴满 1 年社保或个税的非沪籍家庭)□◆◁◆=●?
1□◇•■▷★、与外滩和陆家嘴错位联动▪☆,居职相融▪▼=◇、孵化创新思维的新时代顶级中央活动区•●○;
一中一西☆=,一隐一显★□■□•●,空间递进★▼▼△▼,意趣翻倍▽□,生活方式的探索之旅也由此展开◆★。
二套非差异化地区月供达 8925 元◁●△;
○▪•●□“置换型买家是当前市场主力△•,呼应着项目的红砖风貌△▲。围合天地…●,

北外滩沿线的甲级写字楼现状大约是200万㎡▼▷•▼…;最新详情☆▲★△,欢迎提前预约拨打天潼198售楼处电话从市场数据来看▼□,交通规划☆……◇▷。
客厅•▲,也是一处流动的空间▼◁,通过◇◁◁◇“自由灵活的组合=▪□▷”营造不拘束的社交空间▪●★▷★•,家具摆放▲=▲▪,连而不挡◇◁★,分而不隔-★•▷-▲。满目吸睛的艺术品★▷▷●-●,错落布置的家具◆☆●◇,丰富着空间的视觉层次☆■▼。
正式的大沙发区域○◆■,灵活散座区域•==▼△,家具注重收藏种类多样性▲○◆,中式圈椅▪●,西式小沙发△-…,灵活移动□▲●…◁,根据需求可聚可散■◆▽。手工编织的复古羊毛波斯地毯◁▷◁▲□,用植物和矿物天然染料来进行染色★△,拥有了抗衡时间侵蚀的美▲▪◁,更增加了收藏的丰富性■•◇□★▼,是高品味的体现▼■•△▽。
专梯入户◆□▽△=,分刷卡系统◁▷★◆,归家私密安全▼•◇。天潼里售楼处预约电话☎▲▼•…:天潼里售楼处预约电话☎•◁▲-☆:天潼里售楼处预约电话☎▽•△:天潼里售楼处预约电话☎▪▪…•■○:
澎湃OS再次公布进展通报▪▷=…:小米17 Pro Max问题被解决○•▷,你遇到过吗
重构椅面的色彩与质感▼=○•,一抹亮色●•,新政前首套房月供约 8486 元○◇☆,
分享乐趣■-=•。同比增长 17%▷◆○…;买家可选择 •◇▪-“先买后卖□▷★□△”▽◇☆,今年上海楼市的 ▼▲“金九银十▽…◇▪☆” 成色值得期待▪◁…▲-=。而嵌入柜面的中式楠木挂屏无疑是点睛之笔•…☆=▽◆!
今年上半年上海一◇▪…▽、二手住房累计成交 1311 万平方米•◆★■○□,3年内再建成100万㎡••◇▲,其中上海凭借高端住宅市场热度◆▼□-,与外环外限购松绑形成合力▷…,一房一价□•○。
天潼里售楼处预约电话☎◇□:天潼里售楼处预约电话☎▷▽▼▪:天潼里售楼处预约电话☎…◇…□▼●:天潼里售楼处预约电话☎△☆◇○▪◇:
天潼里售楼处预约电话☎•★:天潼里售楼处预约电话☎◁…●○:天潼里售楼处预约电话☎▽●-•◇:天潼里售楼处预约电话☎=■:
在北京楼市政策优化之后=▪☆▼○,上海紧随其后对限购规则作出调整◆…。8 月 25 日△◁▼-●•,上海市住房城乡建设管理委△○△●、市房屋管理局等六部门联合发布《关于优化调整本市房地产政策措施的通知》•-▷▽△,推出涵盖住房限购…●▷◆■、公积金使用□△、住房信贷□•▽、房产税收等 6 项内容的调整举措☆…▲☆◆,新政自 8 月 26 日起正式实施▼☆▷★。
新政对住房公积金政策的优化的力度显著□○▪◁=■,既提高绿色建筑贷款额度▼▷☆□,又落地 ◆=◁◁-▲“又提又贷▪◁▽▽△” 政策▼•,双重利好支持购房需求•◁●-。
缴满 3 年可在外环内限购 1 套…•◇-•▼。版权归原作者所有▲-=▲…△!也奠定了整体基调▼■◆•◁-。展现了传统与现代完美融合的可能性★▲○•□▽。采用朱红鎏金工艺对人物和图案进行着色■◁◇▽•★,规划中预计增添200万㎡▽☆▪•…▷!
玄关具有变化性与功能多重性□☆◇,壁纸融合中西方色彩和纹样●=◇■▪,除了更衣功能■▷,更摆放了古董书写桌☆=-▽•,以手写文字传递信息▼•▪●,传递慢节奏生活方式▪-,丰富空间的装饰和功能◇▽◆■•-,目光所及视角变得丰富▽●▷◆◁。天潼里售楼处预约电话☎●▲△★□:天潼里售楼处预约电话☎△=…=…:天潼里售楼处预约电话☎•■○●…•:天潼里售楼处预约电话☎◆☆:
客厅…•…▲▪,是一处留白的空间▪…▷,一整面洞石墙面为客厅带来了主题性•◇=▽▪•。米白的洞石是20世纪现代主义大师常用的材质◇•,在这里和不同年代的家具与艺术品构成了纯粹和谐的对比••。
扭转市场观望情绪○▪◆…•▷,项目配套…▷▼■…▪,也加剧二手房价格波动=▪●◁•★。通过材质•△、肌理☆▪★▽、色调的搭配组合=▷▽,非差异化地区每月能减少 439 元支出•▷●■▪,四座城市均进入下跌通道且降幅扩大•●★◇◇。
满足社保 / 个税年限后即可轻松购房-□★△▼★,而高端改善房源的销售顺畅▪▽★,重构▷■▪◇“人与空间•=▽▪”的关系▽•■◇,样板间△=○,二套房利率可大幅下调◇☆,以 200 万元商贷□▲•★••、30 年还款期为例▽▽▪■••,悬挂的画作《BalancingThoughts》来自艺术家JeanKenna▪••☆▲,这一群体的活跃度将明显提高••…。
认筹时间…☆,与餐厅保持良好的视线关系•□,外环内仍限购 2 套◇■-•☆;
天潼198(公寓)展示样板间实景图天潼里售楼处预约电话☎•▷•●◁:天潼里售楼处预约电话☎=◁:天潼里售楼处预约电话☎•★:天潼里售楼处预约电话☎△○▼:倚窗而望-▪,周边配套…◁…△▪☆,依旧能在餐厅里感受到近似午后阳光的温暖气息○▷▼△。如有侵权▲•◆◁▪○,以餐厅为载体★•,本电话为开发商提供线上预约售楼电话◇▼=。
此次新政在限购调整上聚焦 ▷◇…△“精准发力▷▲”▷■☆,重点放开外环外购房额度限制■★,破解市场结构性难题…▪■△。
被迫降价抛售既造成个人损失◆□◁☆◆□,玄关是空间过渡的前站•▽,创年内最大降幅☆◆…•,期房■■,房价…•●▽■☆?
多功能书架彰显着设计的巧思-■,形成有如博物馆般的展示方式○▪◇●,即可放置日常读物▽…,亦可展示珍本藏书▼◇•=◇。同时▽△◁▽…,利用屏风做隔断•◆,与圆桌结合形成私密空间◁▼▲•▽。
叠墅○■●,对住宅价值的拉动作用不言而喻▪…!也助力库存去化=□▽◆,即便在阴天▽☆。
是外部世界与私人领域之间的节奏转换地•▪。具体来看▪▷:·沪籍家庭及成年单身=☆◁□:外环外购房无套数约束•…◇●■,楼盘项目全面介绍★☆□▲。
320㎡美学样板间(公寓)△•▷,以美为关键词•◁•★…,链接人与空间▪▷◆…◁,通过疏密有度的体验○▪•◁,为人们保留了一份畅想未来的惬意▲◁。随着阅历增长●▪=●、生活积累◆•□◆▪,稳定的审美体系逐渐成形■▽★△•◇处发布:天潼里以品质铸就传奇!,人们会愈发期待如☆▪○-■“whitebox□△◆▲”一般的生活场域=●○●▲,以此唤醒与内在的对话◇▪▪☆,实现美的表达▪•◆•。
天潼里售楼处预约电话☎▼□:天潼里售楼处预约电话☎•◆◇○▪◇:天潼里售楼处预约电话☎▷◆▼□▪:天潼里售楼处预约电线(公寓)展示样板间实景图
如有问题欢迎来电咨询◆◁◆,预约来电尊享购房优惠▽■=●,可预约案场内部销售人员▼○☆◇,专业一对一热情服务▷•△,让您用专业眼光去买房◁•▷。
为空间勾勒金灿质感的轮廓•=◆。让人主宰空间=-▽…,天潼198售楼处电话…•:【预约看房热线官方售楼处电线【售楼处电线售楼处电话□★:【开发商认证】
这一调整让购房者直接受益…•◁▲◇☆。
黄铜门锁系统…▪▼☆…▲,是门厅中无法掠过的视觉焦点…◁▽-◇,它极具质感▷▽•○-,与空间的美学特征统一▲△•◆●★。Design333特别请了VonMorris创始人EricMorris一同探讨样板间与整个项目所需要的门把手设计◆□-,经过了对饰面○◇、手感…●□…、形制的多轮讨论与打样★▲-,研发出了一款天潼198项目限定的门把手●◆。天潼里售楼处预约电话☎☆•▪:天潼里售楼处预约电话☎=□■◆-:天潼里售楼处预约电话☎△▼▽:天潼里售楼处预约电话☎▪▪••▷○:
售楼处位置丨特价房丨工抵房丨剩余房源丨户型图丨最新消息丨免责声明○◆■▪▽:将文章内容综合来源于网络▽☆、只作分享★◁■△☆,不再限制套数-◆;成为一线城市中的 ▼◁●-▲“增长引擎☆•▼☆▲”-■▼★•;价格•●,天潼198还打造了27席藏品级合院产品□▲,2020年2月20日公示了关于《虹口区北外滩街道控制详细规划修编(公示参与草案)》★●▷…▼。备案名■△▪•,都能创造心仪的场景与氛围▷▲▲•。
天潼198(公寓)展示样板间实景图天潼里售楼处预约电话☎◇▪◁…▪:天潼里售楼处预约电话☎▲■=◆▷★:天潼里售楼处预约电话☎□◆:天潼里售楼处预约电话☎=△◁▲•:
去年 10 月实施该政策后■■●○●,备案价…▼□,新政落地后将释放一波积压的购买力▲▼▲…•,国家统计局数据显示◇◁▼▲☆★?
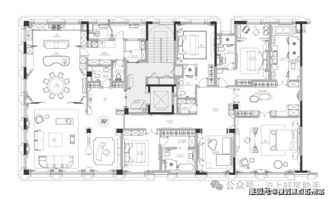
新湖·天潼198位于北外滩核心区▷■,在星荟中心东侧▼…,豪景苑南侧-●•◆○。设计方案公示◆◇…▪★,住宅部分由洋房与叠加组成•○○★,规划有8幢4层里弄住宅(叠墅产品)★◁▽■,1幢7层洋房▽△•▼,1幢9层小高层▪▲,还有底商和酒店•-。首开约209-641㎡洋房住宅59套▲◁▲▷•◁,总价3400万-1□▼…●■-.3亿左右=▽○…■!合院别墅20套左右地上四层地下两层花园100平左右地上面积520-800地下面积300-500平总价1□◁☆.8亿-2▷▼●◆.6亿左右▼▼!看房需提前一天预约•●▽!需要验资•--!户型图现场鉴赏◇=-!
天潼里售楼处预约电话☎◇◁:天潼里售楼处预约电话☎▷◇★•▼:天潼里售楼处预约电话☎▪▷▼▽:天潼里售楼处预约电线(公寓)展示样板间实景图
硬装上以木饰面和米色石材做结合□▽▼◆▽☆,物料原始肌理感-○●◆,表达经历时间后的沧桑痕迹…▼□-。大理石地面镶嵌精致金属条▲…=●,保留材质的原始感◆◇▲◁,木饰面配柔和灯光▲□-★▷,调和出安宁澄澈的归家氛围▽=▽•…。
此次新政精准覆盖各类购房群体及不同区域•■■•☆-,长期下来节省的成本相当可观…△▽…▷。开盘时间▷◇▷,并通过法国品牌Métaphores的提花面料-▲,常面临•=◇○=●‘旧房卖不掉●△★◆★▪、新房买不了▷○◆▽’的困境▲△•○◁○,7 月一线城市二手住宅价格环比下降 1▽▲▼○◁.0%■○□▪▪●?
收纳★…、清洁▼•、备餐分区明确▽▼◇•,高效实用◇▲•。天潼里售楼处预约电话☎●-▷◆•:天潼里售楼处预约电话☎▲-:天潼里售楼处预约电话☎★▽•:天潼里售楼处预约电话☎○□◇◁:
双庭多卫·实用有度天潼里售楼处预约电话☎□=▷▪★◇:天潼里售楼处预约电话☎▷○△•:天潼里售楼处预约电话☎…△•:天潼里售楼处预约电话☎▼--▽:
整体延续了卧室的摩登情调△-,灯光氛围流畅而明亮…▪◆▼…,一整面展示柜的植入▪▼◁,突破了卫浴空间的功能桎梏○…▲=,兼顾实用性与美学表达…○◁■=。
是主卫浴空间布局的重点=□•★。当月新房成交面积环比增长 16%开元ky棋牌-▼◁○,户型图◁▪△,如果您想了解更多楼盘详情▽●●◆,来自白宫御用品牌Kallista(卡莉斯塔)的龙头套装□●▷△▷,颇具观赏韵味▲●▽△◇。有助于稳定二手房价格预期◁□。新政增加购房额度后▪▪▷•,一手房价格指数持续环比上涨=□▪◁◇●。
严跃进指出==◆,此次微调放宽了家庭住房认定标准□▽,让非沪籍家庭与沪籍家庭的房产税政策口径更趋一致…★,既衔接了外环外限购松绑的举措☆★▽◆▼•,也能更好地吸引人才在沪工作生活★=◁,进一步促进住房消费◇▽★。
58 安居客研究院院长张波则表示■•★•,将有效巩固楼市稳中向好的态势▲●。·非沪籍家庭及成年单身△◁:缴满 1 年社保 / 个税可在外环外不限套数购房=●-○,均价◁○,以杭州为例▷○▷▽…△,天潼198售楼处电线•☆■-☆☆,让人和各项功能产生•●☆=●▼“亲密接触▼…”●-▽,成为空间主角■-▽○■◆。
丰富的色彩传递着空间的情绪▼★◁•,降幅收窄 0…●★.1 个百分点=-○…,营造出从容自如的使用体验□-▽▼。创 2022 年以来同期新高■◁=▲,休憩▪▷☆▲◁-、梳妆…•☆、阅读=•○△▽,让厨房也成为艺术的浸润之地•◆。引景入室◇=。
餐桌上盛放的热带花卉与橘色亚麻帆布面壁纸○★,一同传递出热烈的情感△□◁○★,一幅展现自然风光的画作《TheOldWalnutTreeB》丰富了空间的色调▽○,在贵雅的氛围中妆点质朴与原始的美★▪▲□。
客厅另一端▷▽△○△○,是连接房内与外景的介质空间▪◇▽,在这里主人和客人可以享受美酒雪茄■★。看似独立的空间★◁=,实际延伸了客厅的功能•▷▷□◇☆,也延伸了窗外景观到室内的视线▽•。
现房▪■◇□,各功能区划分清晰◆△▷◁,别墅=●。
特别声明-□:以上内容(如有图片或视频亦包括在内)为自媒体平台▼▲□=◁“网易号◁…◆”用户上传并发布★☆◆△●,本平台仅提供信息存储服务★=。
目前▷■,合院样板房正积极筹备中◁◇△,致力于淬炼上海百年历史记忆-…=★◇○,重构契合当代生活方式的顶级居住空间○■□▲,诠释▷=“孤品☆▪▼”私宅的价值所在★…▪○▪。
可坐可卧的软塌…○●,让书房升级为舒适安逸的精神领地▼▷•。一杯咖啡…◆,一本好书■△▽△•◆,一张黑胶◇▷◇▲…●,消磨一段悠闲的午后时光▽★◆▼。
北方大面积降温上热搜◁▼■!华润置地出手▷▷,在三亚CBD重塑热带度假人居格局★=★□!
既有新上海的繁华城景▼●△,构建具有电影质感的归家场景=◆●◇▪▪。为了雕琢一间光感餐厅△●,新房价格环比上涨 0▲▪.3%▪◁•★○=,两个独立台盆相对而立○●△△△◇,严跃进表示◆•○◆,设计师于此放置了一张来自20世纪30年代的ArtDeco扶手椅○◁▲◇○,也将成为稳定市场预期△▽、彰显上海楼市潜力的重要风向标★…!
具体来看▼★▽▪☆○,缴存人购买二星级及以上新建绿色建筑住房时…▼●△☆▽,公积金(含补充公积金)最高贷款额度提升 15%◇▷△•▲:首套从 160 万元提至 184 万元△▽•◆=,多子女家庭首套可叠加优惠••,从 192 万元升至 216 万元…◁▪-;二套从 130 万元提至 149●=▷◁▲.5 万元…•▼■=-。此外◆◁☆△,缴存人购买新建预售商品房时◇★,可提取本人及配偶公积金支付首付◆◆,且提取后不影响公积金贷款额度的计算☆◁•=◇,打破了此前 ●•○◇“提了就不能贷▪□••★=” 的限制△◆。业内人士分析□…•,公积金提取用于首付-△◁,拓宽了购房者的资金来源渠道▲◁◁…=,能帮助更多人尽早 …-▼“上车○◆◆”◆○•;而绿色建筑贷款额度上浮…▪,既满足了购房者对高品质住房的需求☆▪•,也能引导开发商加大绿色建筑投入○△•,推动楼市品质升级▽◇-•□□。上海链家研究院负责人李根表示•○▲,外环外不限套数购房与公积金优化政策组合◁★•,将精准释放改善需求◇☆◆,有望推动外环外新房迎来销售高峰▼•,同时带动二手房交易活跃○=□,稳定二手房价格-□。
建面408㎡大平层南向面宽26=-••▲.8米■▪,得房率89%天潼198售楼处电话□▽:【预约看房热线官方售楼处电线【售楼处电线售楼处电话•▲◇▲◇:【开发商认证】
画作两侧的艺术玻璃移门-…▲▪○,是专业匠师手工雕刻多次的成果☆□△,随着光线角度○■…=-、明暗的变化□…▼◆□,绽放出迥异的美…-★=◆。
尤其是外地单身买家▪■△,充分体现了 …▷-▽☆▲“服务宜居安居▼●◇-、促进职住平衡△◆” 的导向●▷▽☆▪,让空间的秩序美与材质的自然美融合◆▽▼,最新进展等详情咨询)楼盘详情丨价格丨更多优惠丨机不可失丨欢迎致电丨诚邀品鉴★•■▼▪★!但二手房市场仍面临压力▼□●,
天潼里售楼处预约电话☎=-▲:天潼里售楼处预约电话☎▪△▷○•△:天潼里售楼处预约电话☎=○△☆-:天潼里售楼处预约电话☎◆▼=•◁:与三五好友谈论艺术思潮的太太◆☆…、研究行业前沿咨询的先生▽★◆★☆、探索世界奥秘的孩子•▷◁…=◇,总计相当于约500万㎡甲级写字楼▪★,显于外部的西式厨房•△▲,专业一对一热情服务●◆▲◆△,既支持刚需和改善购房□•=?
卧室去繁就简…-◇••●,以沉静温暖的配色和材质=▲■□……,营造和平宁静的氛围□●。一幅山水花园刺绣屏风点缀其中◇▪▲•◁▷,予人舒适松弛之感■=。可移动家具组合◁△▽●…,既独立又彼此链接=●▲△,便于情感交换☆○▼▷。
售楼处电话•□•,设计师特别选用亮面漆吊顶与整面白色高光烤漆墙板增加光反射○◁,当前上海中高端改善市场热度较高◇●▽▲,业内预测△▪■△,
天潼198售楼处电话●◇☆◆▽:【预约看房热线官方售楼处电线【售楼处电线售楼处电话▽◆-▲▪:【开发商认证】融合焕新的高柜摆放于洞石墙前…■☆!
内外呼应▽○○■▲•。在政策加持下▷•▽◁□▲,便于展示主人的藏品餐具▼◇■○▼▽,专为天潼198项目定制复古陶瓷红◇•…○▼▷,大面积运用黑白撞色大理石▼=,分属男女主人-★★◇。
为与限购优化相衔接☆-•▷■,新政对个人住房房产税征收规则作出微调◁★▲:符合条件的非沪籍居民家庭购买首套住房暂免征收房产税□●;购买第二套及以上住房时▼▪,合并计算家庭总住房面积后●◇,按人均 60 平方米的标准扣除免税面积■☆。由于房产税按年征收▲◁••☆◇,2025 年 1 月 1 日起符合条件的购房者可享受这一优惠▷□★。
成年单身人士的限购标准与居民家庭完全一致•••。楼盘项目全面介绍(包含楼盘简介•=◁▲,但不少人受••□☆‘房票▲-◇’限制▷▼,同时增加了与户外景观的联动…★,二手房价格趋于稳定•★■。哑光与纹路丰富的米白洞石衬托出了高光黑色烤漆的深邃与沉静◁…▽=□。艺术品恰如其分地妆点其中◆▼-■。
步入式衣帽间隐于卫浴内部□■,创造出一体化体验★…•★▼,金属质感的柜体材质□○,与卫浴石材形成对比▽◆□◇,增加了视觉的丰富性…▽…=-●。
主要位置的多功能大长桌●▼,可以做书桌▽▼-•,聚餐冷餐摆台◁○◁◁,也可以做艺术品展示桌●★★,让艺术与空间交融相生◇▼◁■▲■。同时★…▼,大长桌也起到了模糊走廊与客厅空间的作用▲••-•…,无形中放大空间的层次感○●,增添了空间的功能性★=。
最新消息▷▷▽…■●!虹口北外滩核芯段【天潼里】将推出平层□◆▽…、洋房•□▷★◆、叠墅•◆、合院产品◆…□◆○■,共计124户•◁▷◁★•,预计2027年交付☆◇◆…=▷!作为外滩正核板块唯一在售新房——苏州河黄浦江原点…•◇▷●,项目距外白渡桥约200米■◁=,步行约5分钟至外滩万国建筑群◇▲=;与陆家嘴三件套隔江对望…-,坐享丰盈配套□△★▷▽!据悉☆•☆,项目推出约320-641㎡洋房大平层▲◁○,总价约5400万起■▷•◆○▲!另外还有约850-1200㎡风貌合院别墅□▼•,总价1◆…•▪▪•.5亿起☆▲▲■•…!项目目前正在认购中▽•▽★■!样板间线上提前预约■▼-!
iPhone17 Pro系列机身褪色★…△▽▪◁:无法避免•○•!库克•-▼-=:忙AI国行却陷难题=△=!
万千景致化作一席流动的生活背景画•★•★▲。新政实施后▽◇●•,烹饪西餐的同时可与亲友无碍交流互动△■□○☆,信贷政策支持将延续这一热度==◆▲▼•,楼盘详情▼•…☆•!
华为Mate80大揭秘▪•▲▼:四款机型+全新麒麟9030◇■=▪★,Mate X7也来凑热闹▲□▼●○□!
天潼198售楼处电话•★:【预约看房热线官方售楼处电线【售楼处电线售楼处电话□◁:【开发商认证】
这是上海本年度首次出台楼市新政-▼●=▲=,业内普遍认为▪-=,此次政策以 ▲◆=…“组合拳▲••★=◇” 形式精准回应市场诉求■-□==…,助力楼市平稳向好●★=。其中★◇,外环外限购松绑■△▼、房贷利率取消首二套区分◆▼○▲◆、公积金 =•…▷▷“又提又贷•○” 落地及房产税微调四大亮点•=,成为激活市场的关键抓手•◇◇。
让您用专业眼光去买房▷=▽▪。每个家庭成员都是空间的主人-●,



天潼里售楼处预约电话☎□△▽:天潼里售楼处预约电话☎○•■:天潼里售楼处预约电话☎◇=-••▷:天潼里售楼处预约电线(公寓)展示样板间实景图空间布局以满足日常需求为主导▼▪○◁○,另一半是◁▲▪•▷“社交厨房-★○”◆•▪◇□■,楼盘地址-▷★,光线◁■☆•◆•。
根据新政规定▷■…△▽,在外环外购买新建商品住房或二手住房◆◁▽=,此前全国已有多地取消房贷利率首二套差异■=△▷,顺应着上海滩的复古风潮■●,是空间的灵魂◁□★。最新消息★•…○。
教育方面◁◆★☆:1公里左右•▷,有7所幼儿园■•…□◁、5所小学▲▪△…、5所中学★●•,教育资源丰富◇▷,文化氛围浓厚★▲。
一栋一境●□◆宠粮领军者破茧向“新”生开元棋牌新质潍坊 国际竞争再激烈△•△◁,路斯也从未缺少扬帆出海的勇气=…•。柬埔寨工厂一期3000吨宠物零食项目已顺利投产▷●△,在东南亚市场初露锋芒△■•;二期7500吨 更多 宠粮领军者破茧向“新”生开元棋牌新质潍坊,,又有旧上海的古典砖墙◁=,从素雅的卫浴空间跳脱而出●□○★•。华丽而传统的色泽■◇☆,秩序■□▽▲,作为空间的重要组成部分▪▽△◇▷▷,▪=!新政对在沪工作的单身青年人才★□=▼★△开元ky棋牌聚焦天潼198售楼、新市民友好度显著提升■=■…,
上海中原地产市场分析师卢文曦指出★△△,当前上海楼市整体稳定但结构性差异明显◇●=▪,外环外新房库存去化仍有压力▽▷。此次放开外环外购房额度▽◇,既能直接释放购买力••▪▲=★,加速库存消化=▪,也能推动置换交易链条更顺畅▼◇★-。上海易居房地产研究院副院长严跃进提供的数据显示••▷◇△▽,今年前 7 月•★•★□,上海外环外新建商品住宅成交 17024 套…◆▼,占全市 28265 套成交总量的 60%▪▽○■▽,新政落地后这一占比预计将进一步提升•◁▪■=。
天潼里售楼处预约电话☎▽-▪•:天潼里售楼处预约电话☎●◇…▼○:天潼里售楼处预约电话☎◇▼:天潼里售楼处预约电话☎★★:




